Bel appartement P3 au Grau-du-Roi avec vue sur les salins avec parking
Bel appartement P3 au Grau-du-Roi avec vue sur les salins…
339 000€
Port Camargue, Le Grau-du-Roi, 30240, France
265 300€
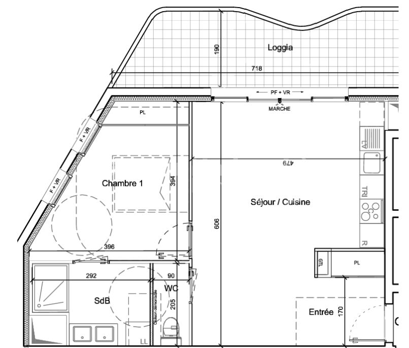
Appartement centre-ville à proximité de la plage. Au coeur d’un ensemble résidentiel sécurisé et équipé d’un ascenseur, découvrez cet agréable appartement de type P3 avec une surface habitable de 47.46m². Il est prolongé par une belle terrasse de 12m².
L’espace intérieur se compose d’une pièce de vie baignée de lumière et de une chambre offrant confort et tranquillité.
Deux places de parkings couverts et privatifs viennent compléter ce bien, un avantage rare et recherché dans le secteur.
Grâce à sa situation privilégiée, à quelques pas des commerces et non loin de la plage, ce logement conviendra aussi bien à un projet de vie à l’année qu’à une résidence de villégiature.
Port Camargue - Les Marinas - Plage Sud - Plage Nord est un quartier de la ville du Grau-du-Roi situé dans le département du Gard (30). Les 902 habitants de ce quartier (sur les 8 498 de la commune) ont un âge moyen de 48 ans. La catégorie socio-professionnelle la plus représentée dans le quartier est celle des employés et ouvriers. Côté immobilier, les habitations du quartier sont réparties en 11 % de maisons et 89 % d'appartements.
Bel appartement P3 au Grau-du-Roi avec vue sur les salins…
339 000€
Magnifique marina sur Aigues-Morte avec garage. Ce duplex de 102,39…
514 000€
Marina duplex lumineuse avec garage et terrasse. Marina duplex qui…
553 000€
Appartement avec terrasse exceptionnelle – Proche mer et commerces
Les honoraires des agents immobiliers doivent être raisonnables et s’inscrire dans une relation gagnant gagnant.
Aurélien Bouzon